Zabytek.pl
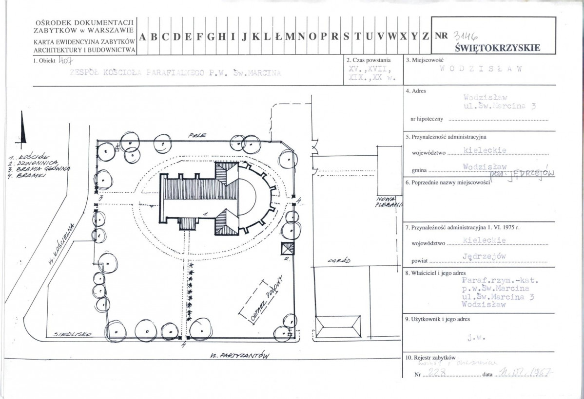
zespół kościoła parafialnego pw. św. Marcina 1
Przejdź do widoku obiektu
pobierz
Pobierz
Dodaj do ulubionych
Dodaj do ulubionych
drukuj
Drukuj
podziel się w mediach społecznościowych
Udostępnij