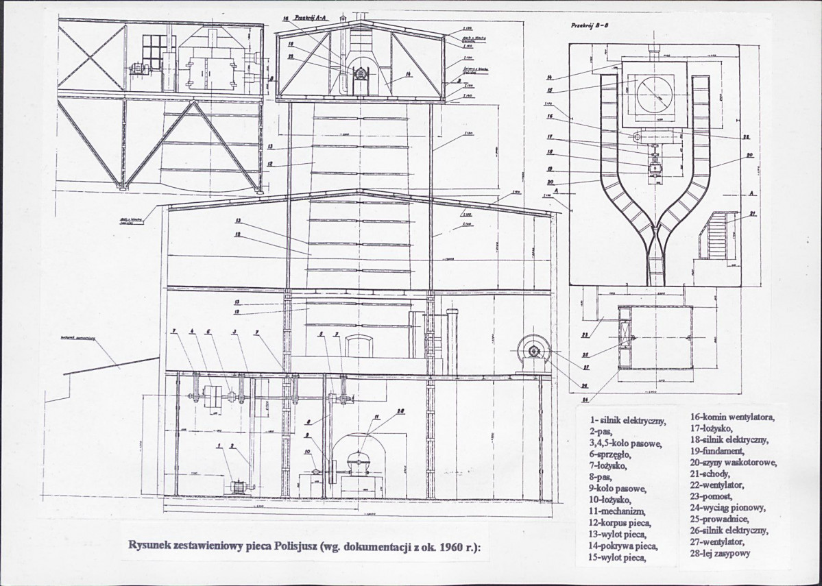
Zabytek.pl piec szybowy "Polisjusz" 1 Przejdź do widoku obiektu Karta biała Pobierz Pobierz Pobierz 1 stronę Pobierz dokument Dodaj do ulubionych Dodaj do ulubionych Drukuj Drukuj Udostępnij Udostępnij Udostępnijpodziel się na linkedinpodziel się na fejsbukupodziel się na tłiterze Informacje Notatki zamknij widok Domyślny widok abc Warstwa OCR Widok stron 11 Widok stron Powiększ Powiększ poprzedni obiekt następny obiekt Karta biała piec szybowy "Polisjusz" Nr karty: 7266 Data dokumentu: 1996-12-20 Autor: Baliński Jerzy A. Zasób: Ewidencja zabytków nieruchomych Identyfikator: PL.1.9.ZIPOZ.NID_N_02_EN.224232 Dodaj do kolekcji Licencjedomena publiczna Dodaj notatkę Dodaj notatkę Dodaj notatkę Dodaj notatkę Dodaj notatkę Dodaj notatkę Dodaj notatkę Dodaj notatkę Dodaj notatkę Dodaj notatkę Dodaj notatkę Aby dodawać lub przeglądać notatki musisz się zalogować. Zaloguj się Nie masz jeszcze konta? Zarejestruj się Pobierz Pobierz Pobierz 1 stronę Pobierz dokument Dodaj do ulubionych Dodaj do ulubionych Drukuj Drukuj Udostępnij Udostępnij Udostępnijpodziel się na linkedinpodziel się na fejsbukupodziel się na tłiterze Karta biała 11 Podgląd stron11 1 2 3 4 5 6 7 8 9 10 11 1 2 3 4 5 6 7 8 9 10 11