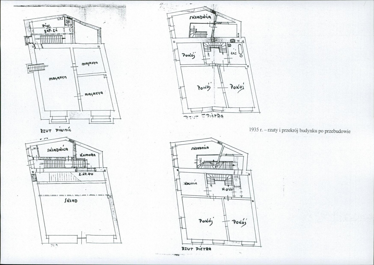
Zabytek.pl dom 2 Przejdź do widoku obiektu KB - Karta biała pobierz Pobierz Pobierz 1 stronę Pobierz dokument Dodaj do ulubionych Dodaj do ulubionych drukuj Drukuj podziel się w mediach społecznościowych Udostępnij Udostępnijpodziel się na linkedinpodziel się na fejsbukupodziel się na tłiterze InformacjeNotatki zamknij widok Domyślny widok abc Warstwa OCR Widok stron 17 Widok stron Powiększ Powiększ poprzedni obiekt następny obiekt KB - Karta biała dom (kamienica) Nr karty: 4897 Data dokumentu: 2001-10-01 Autor: Jaszewska Ewa Zasób: Ewidencja zabytków nieruchomych Identyfikator: PL.1.9.ZIPOZ.NID_N_04_EN.336622 Dodaj do kolekcji Licencjedomena publiczna Dodaj notatkę Dodaj notatkę Dodaj notatkę Dodaj notatkę Dodaj notatkę Dodaj notatkę Dodaj notatkę Dodaj notatkę Dodaj notatkę Dodaj notatkę Dodaj notatkę Dodaj notatkę Dodaj notatkę Dodaj notatkę Dodaj notatkę Dodaj notatkę Dodaj notatkę Aby dodawać lub przeglądać notatki musisz się zalogować. Zaloguj się Nie masz jeszcze konta? Zarejestruj się KB - Karta biała 17 Karta zielona 2 Podgląd stron17 1 2 3 4 5 6 7 8 9 10 11 12 13 14 15 16 17 1 2 3 4 5 6 7 8 9 10 11 12 13 14 15 16 17