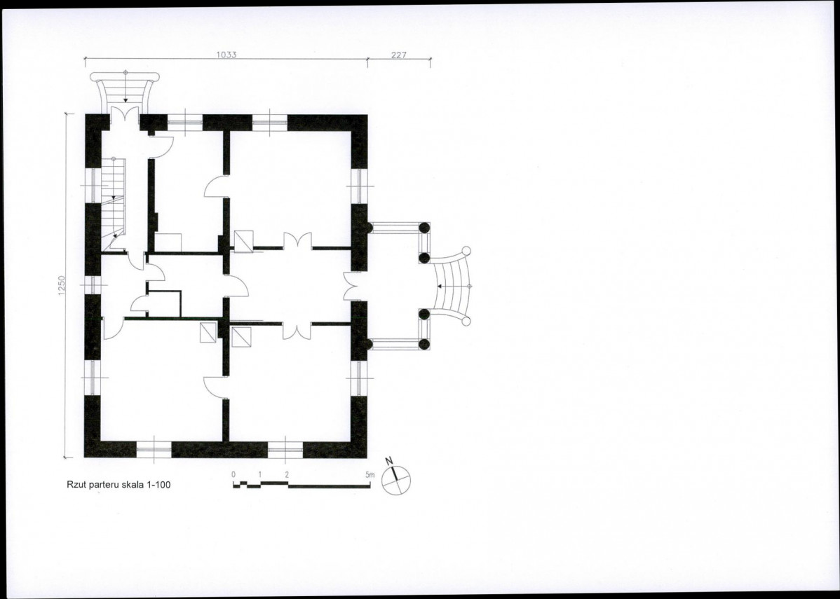
Zabytek.pl dom (willa PROMIENNA) 1 Go to monument's view KEZN - Karta obiektu niewpisanego do rejestru download Download Download this page Download document Add to favorites Add to favourites print Print share in social media Share Shareshare on linkedinshare on facebookshare on twitter DocumentNotes close view Default View abc Warstwa OCR Page view 10 Page view Zoom In Zoom In previous object next object KEZN - Karta obiektu niewpisanego do rejestru Nr: 9447 Document date: 2012-01-01 Author: Szuliński Jan Register: Ewidencja zabytków nieruchomych Document Id: PL.1.9.ZIPOZ.NID_N_14_EN.330560 Add to collection Licence Add note Add note Add note Add note Add note Add note Add note Add note Add note Add note Please, login to add notes. Login Not registered yet? Register now! KEZN - Karta obiektu niewpisanego do rejestru 10 Podgląd stron10 1 2 3 4 5 6 7 8 9 10 1 2 3 4 5 6 7 8 9 10