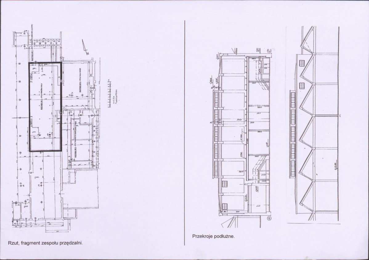
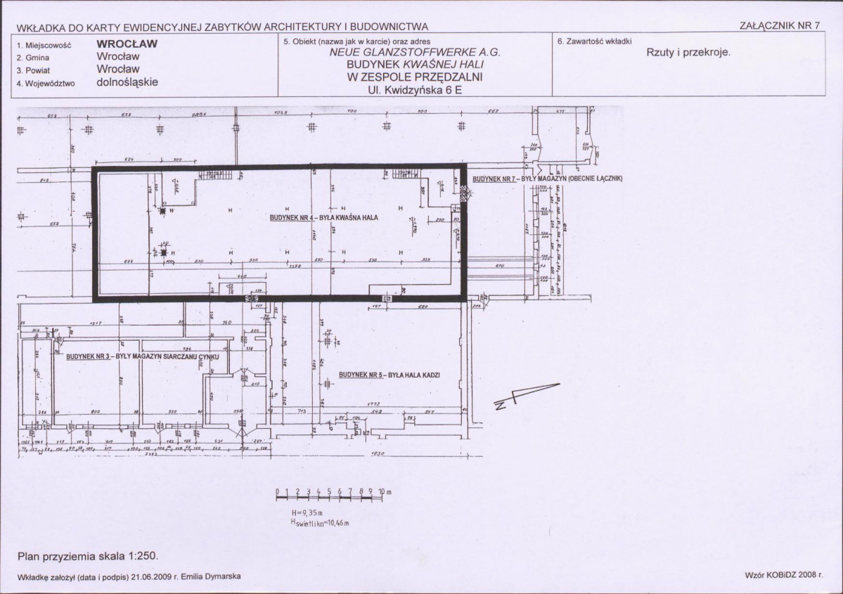
Zabytek.pl budynek kwaśnej hali (przędzalnia) 1 Go to monument's view KB - Karta biała download Download Download this page Download document Add to favorites Add to favourites print Print share in social media Share Shareshare on linkedinshare on facebookshare on twitter DocumentNotes close view Default View abc Warstwa OCR Page view 17 Page view Zoom In Zoom In previous object next object KB - Karta biała Nr: 11799 Document date: 2009-06-21 Author: Dymarska Emilia Register: Ewidencja zabytków nieruchomych Document Id: PL.1.9.ZIPOZ.NID_N_02_EN.242740 Add to collection Licence Add note Add note Add note Add note Add note Add note Add note Add note Add note Add note Add note Add note Add note Add note Add note Add note Add note Please, login to add notes. Login Not registered yet? Register now! KB - Karta biała 17 Podgląd stron17 1 2 3 4 5 6 7 8 9 10 11 12 13 14 15 16 17 1 2 3 4 5 6 7 8 9 10 11 12 13 14 15 16 17